白×ナチュラルで叶える家族のほっとする暮らし
2025/12/08
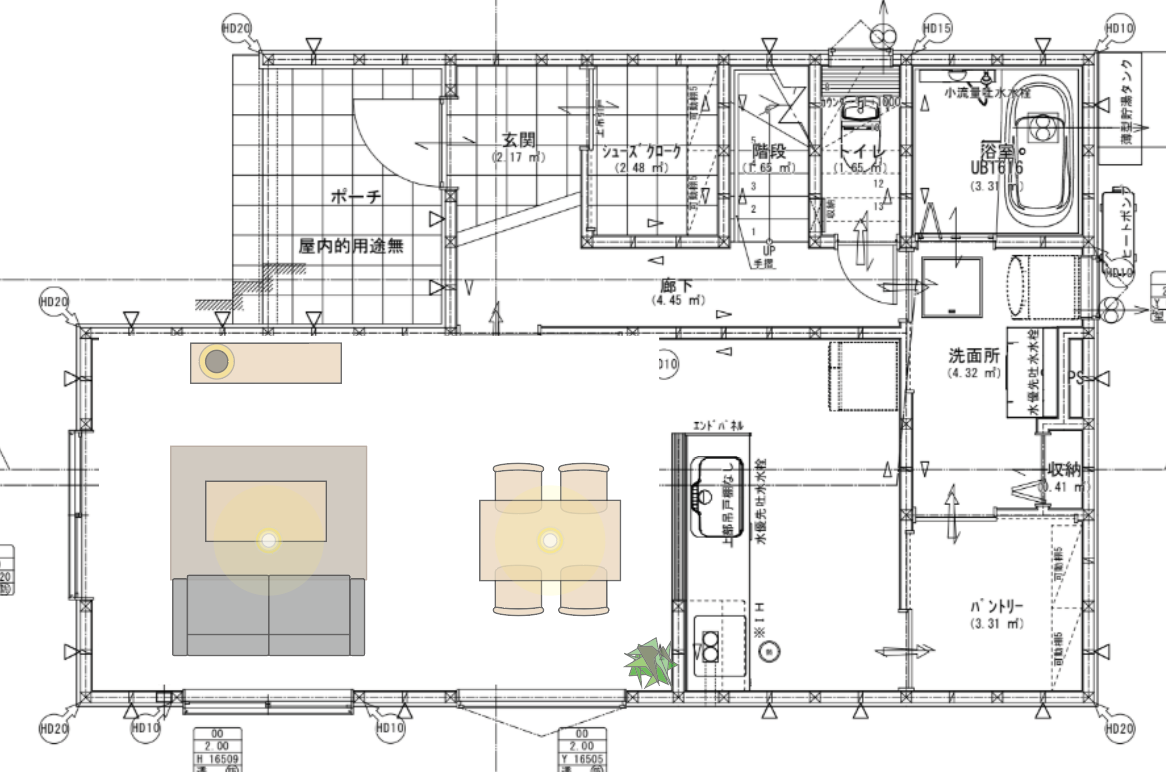
殿村2期 3号棟
神奈川県伊勢原市・伊勢原駅徒歩22分
102.67㎡・3LDK

インテリアコーディネーターのAです。
今回は、白を基調とした外観やフローリングのナチュラルカラーに合わせ、家具や小物も明るいトーンで統一。広がりを感じながらも、家族が自然と集まれる居心地の良いリビングダイニングを心がけています。
今回は、白を基調とした外観やフローリングのナチュラルカラーに合わせ、家具や小物も明るいトーンで統一。広がりを感じながらも、家族が自然と集まれる居心地の良いリビングダイニングを心がけています。

Natural
Living Interior
ナチュラル リビングインテリア
自然も感じられる落ち着いた立地に建つ4LDK・144㎡のゆったり空間。
この物件では「視覚的な広さ」と「収納力」を重視し、小さなお子さんのいるご家族ののびのび暮らしをイメージしたホームステージングを行いました。
この物件では「視覚的な広さ」と「収納力」を重視し、小さなお子さんのいるご家族ののびのび暮らしをイメージしたホームステージングを行いました。
低めでスリムなソファを選んだのは、窓からの光をできるだけ遮らず、開放感を損なわないため。視線を通しつつしっかりくつろげる、というバランスにこだわりました。
全体的にゆとりをもって設えたことで、お子さんが安心して遊べるスペースをつくることもできます。
フェイクグリーンを少し高めの位置に置いて、白を基調とした空間に彩りと視線の抜けをプラス。フェイクグリーンは、お手入れ不要で気軽にリフレッシュ感を出せるので、忙しいご家庭でもマネしやすいポイントです。
全体的にゆとりをもって設えたことで、お子さんが安心して遊べるスペースをつくることもできます。
フェイクグリーンを少し高めの位置に置いて、白を基調とした空間に彩りと視線の抜けをプラス。フェイクグリーンは、お手入れ不要で気軽にリフレッシュ感を出せるので、忙しいご家庭でもマネしやすいポイントです。
ダイニングテーブルは、家族でゆったり座っても余裕のあるサイズ感に。ナチュラルな木目は白い壁との相性が抜群で、テーブルに乗る料理がキレイに映えます。ペンダントライトは少し低めにすることで、食卓をやさしく照らす会話の場へと演出。
ダイニングテーブルの上のお皿は全体の雰囲気を締める黒をセレクトしてみました。
ダイニングテーブルの上のお皿は全体の雰囲気を締める黒をセレクトしてみました。
水まわりの空間は、生活感が出やすい場所。だからこそ、タオルやソープボトルなどの小物はすべて白で統一しています。これだけで毎朝の洗面時間がちょっと気分よく過ごせるんです。
ハーシー ソファベッド
3人掛け
いつでも返せるプラン
あとから購入可能
4,620
円/月〜
form ガモット ローボード
幅150×奥行40×高さ46cm
いつでも返せるプラン
あとから購入可能
4,537
円/月〜
CIRCLE 無垢材天板 ダイニングテーブル 木脚
W135×D80×H70cm
いつでも返せるプラン
あとから購入可能
2,530
円/月〜
ITOKI バーテブラ03チェア 5本脚
1脚
いつでも返せるプラン
5,280
円/月〜
form キャラウェイ オープンシェルフ
Lサイズ 幅120×奥行36×高さ80㎝
配送0円プラン
あとから購入可能
2,640
円/月〜
ジオーク ベッドフレーム
ダブル
いつでも返せるプラン
あとから購入可能
3,300
円/月〜
CIRCLE ダイニングチェア 02
1脚
いつでも返せるプラン
あとから購入可能
1,320
円/月〜
トルサ テーブルランプ
テーブルランプ
いつでも返せるプラン
あとから購入可能
1,400
円/月〜
ウンベラータ スパイラル150cm(フェイクグリーン)
W60×H150xφ20cm
いつでも返せるプラン
あとから購入可能
1,400
円/月〜
コールⅡ チェア
W49×D40×H85cm
いつでも返せるプラン
あとから購入可能
1,100
円/月〜
セブンイレブン伊勢原板戸店:約450m(徒歩約7分)
セブンイレブン伊勢原峰岸店:約350m(徒歩約5分)
エムアイプラザ:約300m(徒歩約5分)
ベルク 伊勢原白根店 :約1㎞(徒歩約15分)
| 種別物件 | 新築戸建 |
| 価格 | 4,180万円(税込) |
| 所在地 | 神奈川県伊勢原市板戸字殿村142番7 |
| 交通 | 小田急小田原線「伊勢原」駅徒歩22分 |
| 土地面積 | 186.24㎡(56.34坪) |
| 建物面積 | 1F:53.82㎡、2F48.85㎡ 、合計102.67㎡(31.06坪) |
| 構造 | 木造2階建 |
| 地目 | 宅地 |
| 敷地権利 | 所有権 |
| 用途地域 | 第一種中高層住居専用地域 |
| 建ぺい率 | 60% |
| 容積率 | 200% |
| 接道状況 | 西側公道幅員約5.0mに約3.7m接道 |
| 引渡 | 応相談 |
| 法令 | 準防火地域、景観法、 |
| 設備 | 公営水道・公共下水・東京電力(オール電化) |
| 現況 | 完成済 |
| 建築年月 | 令和7年10月 |