始発駅で叶える、シングルライフのベース
2026/04/06
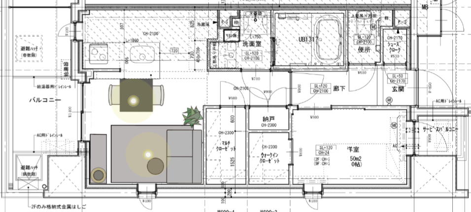
ランカ横浜磯子 B2タイプ
神奈川県横浜市・磯子駅徒歩3分
38.01㎡・1LDK

インテリアコーディネーターのAです。
今回は、この物件は、磯子駅徒歩3分・横浜まで15分という立地のよさがあり、「家はコンパクトだけど、暮らしの満足度は高い」そんなライフスタイルをイメージしてコーディネートしました。
今回は、この物件は、磯子駅徒歩3分・横浜まで15分という立地のよさがあり、「家はコンパクトだけど、暮らしの満足度は高い」そんなライフスタイルをイメージしてコーディネートしました。

Monotone Modern
Living Interior
モノトーンモダン リビングインテリア
「Monotone Relax — 都心へのアクセスも、暮らしも軽やかに」
白い内装と黒い建具というメリハリのあるベースを生かし、背伸びしすぎない大人のモノトーンをテーマに統一しています。
収納の広さを最大限に活用し、モノが表に出ないことで「シンプルな生活」がちゃんと実現できる、そんなイメージを提案できればと思います。
白い内装と黒い建具というメリハリのあるベースを生かし、背伸びしすぎない大人のモノトーンをテーマに統一しています。
収納の広さを最大限に活用し、モノが表に出ないことで「シンプルな生活」がちゃんと実現できる、そんなイメージを提案できればと思います。
白基調の空間に黒い建具が映えるので、リビングはあえて「余白のあるモノトーン」をテーマにまとめました。
ソファはコンパクトながら背もたれがしっかりしていて、一人暮らしやDINKSでもくつろげるサイズ感。80cm角のダイニングテーブルは、二人で食事するには十分な広さ。角が丸いことで動きやすく、部屋を狭く見せない効果もあります。
椅子は黒で統一し、リビングとのモノトーン連携もばっちり。磯子駅から横浜まで15分なので、平日でも外食・自炊をバランスよく楽しむ生活スタイルを想像して、帰ってきたらすぐに食事の時間が整う空間を意識しました。
ソファはコンパクトながら背もたれがしっかりしていて、一人暮らしやDINKSでもくつろげるサイズ感。80cm角のダイニングテーブルは、二人で食事するには十分な広さ。角が丸いことで動きやすく、部屋を狭く見せない効果もあります。
椅子は黒で統一し、リビングとのモノトーン連携もばっちり。磯子駅から横浜まで15分なので、平日でも外食・自炊をバランスよく楽しむ生活スタイルを想像して、帰ってきたらすぐに食事の時間が整う空間を意識しました。
水まわりは生活感が出やすい場所なので、清潔感をキープしながらホテルライクを意識しています。
白い洗面台にグレートーンの小物を合わせるだけで、一気にスタイリッシュに見えるんです。特に収納がしっかり確保されているので、タオルや日用品を扉内にしまえば常にスッキリ。
広い収納はこの物件の特徴でもあるので、見せない収納が自然にできる点も丁寧に伝えたいポイントです。バス・トイレ・洗面が同デザインで統一されているから、朝の身支度も快適になりますね。
白い洗面台にグレートーンの小物を合わせるだけで、一気にスタイリッシュに見えるんです。特に収納がしっかり確保されているので、タオルや日用品を扉内にしまえば常にスッキリ。
広い収納はこの物件の特徴でもあるので、見せない収納が自然にできる点も丁寧に伝えたいポイントです。バス・トイレ・洗面が同デザインで統一されているから、朝の身支度も快適になりますね。
CIRCLE ローボード 01
W120×D45×H33cm
いつでも返せるプラン
2,900
円/月〜
CIRCLE 無垢材天板 ダイニングテーブル 鉄脚
W80×D80×H70cm
いつでも返せるプラン
あとから購入可能
2,000
円/月〜
&MEDICAL 姿勢サポートチェア KURA CHAIR
幅45.5×奥行43×高さ71㎝
配送0円プラン
あとから購入可能
2,750
円/月〜
ボアレ ダイニングチェア
幅47×奥行62×高さ91cm
いつでも返せるプラン
1,045
円/月〜
テラゾーライク サイドテーブル ウェーブ
幅40×奥行40×高さ48㎝
配送0円プラン
あとから購入可能
913
円/月〜
form ショートシャギー ラグ
130×190㎝
いつでも返せるプラン
あとから購入可能
1,980
円/月〜
ラウンド サイドテーブル
φ48×H52cm
いつでも返せるプラン
あとから購入可能
1,100
円/月〜
アクア テーブルランプ
テーブルランプ
配送0円プラン
あとから購入可能
1,700
円/月〜
オリーブツリーポット120cm(フェイクグリーン)
W55×H120×φ12.5cm
配送0円プラン
あとから購入可能
1,600
円/月〜
ヨークマート 磯子店:約80m(徒歩1分)
ピーコック 磯子店:約90m(徒歩2分)
トモズ 磯子店:約90m(徒歩2分)
磯子区役所:約480m(徒歩6分)
| 物件名 | ランカ横浜磯子 |
| 所在地 | 神奈川県横浜市磯子区森1-2033-5 |
| 交通 | JR京浜東北線・根岸線「磯子」駅徒歩3分 京急本線「屏風浦」駅徒歩11分 |
| 種別物件 | マンション |
| 総戸数 | 56戸 |
| 構造 | 鉄筋コンクリート造 地上9階建 |
| 建築年月 | 2025年10⽉29日 |
| 引渡 | 即引渡可(諸手続き完了後) |
| 間取り | 1LDK |
| 専有面積 | 38.01㎡ |
| バルコニー面積 | 8.44m² |
| アルコーブ面積 | 1.25m² |
| 販売予定価格 | お問い合わせください |
| 管理費(月額) | お問い合わせください |
| 修繕積立金(月額) | お問い合わせください |