高層階の開放感を楽しむ、明るい北欧リビング
2025/12/19
リムザ 903号室
東京都府中市・是政駅徒歩4分
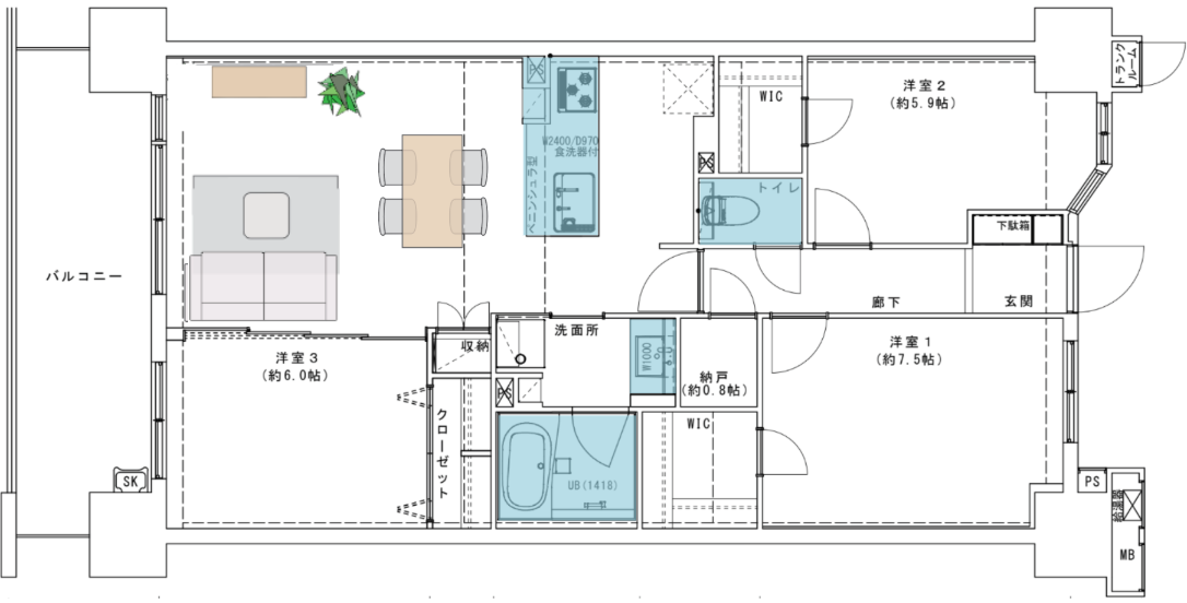
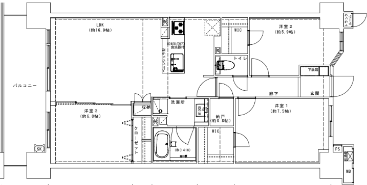
80.21㎡・3LDK

インテリアコーディネーターのNです。
今回ご紹介する物件は、是政駅徒歩4分というほどよく落ち着いた立地と、80㎡超のゆとりある間取り。
この、のびのび感をそのまま住まいの空気に落とし込みたいと思い、ホワイトオーク調のフローリングに寄り添うナチュラル・北欧テイストで全体を整えました。
今回ご紹介する物件は、是政駅徒歩4分というほどよく落ち着いた立地と、80㎡超のゆとりある間取り。
この、のびのび感をそのまま住まいの空気に落とし込みたいと思い、ホワイトオーク調のフローリングに寄り添うナチュラル・北欧テイストで全体を整えました。

Light Natural
Interior
ライトナチュラル インテリア
コーディネートのコンセプトは、“都会の高層マンションとは違う、のびやかな空の近さを感じて”。LDKのみのステージングですが、ほかの3部屋も6帖以上・クローゼット付きと余裕のあるレイアウト。だからこそ、家族が自然と集まるLDKには安心して帰ってきたくなる温度感を持たせたくて、丸みや木の温もりを感じる家具を中心にセレクトしています。
16.9帖のLDKには、大きすぎず低めのフォルムが愛らしいソファを置き、視界が広がるよう工夫しています。ホワイトオーク調の明るいフローリングに、北欧らしい淡色のラグやスクエアテーブルを合わせることで、自然光がふんわりと回るやさしい雰囲気のリビングになりました。テレビボードは薄型の木目デザインを選び、生活感が出やすいAV周りをすっきりと。ペットと暮らせるマンションなので、ソファ前やラグの上はワンちゃん・猫ちゃんがくつろげるスペースとしてもぴったりです。
ダイニングには、木目のぬくもりを感じられるテーブルと、丸みのあるチェアをコーディネートしています。大人4人が座っても窮屈にならないサイズで、家族の成長も意識した選び方です。
キッチン側にはフェイクグリーンをあしらい、ホワイトオーク調の床と調和するナチュラルな雰囲気をプラス。料理中もダイニングにいる家族の様子が自然と目に入る配置なので、家事とコミュニケーションがほどよくつながる温かな空間に仕上がりました。
キッチン側にはフェイクグリーンをあしらい、ホワイトオーク調の床と調和するナチュラルな雰囲気をプラス。料理中もダイニングにいる家族の様子が自然と目に入る配置なので、家事とコミュニケーションがほどよくつながる温かな空間に仕上がりました。
今回はナチュラル・北欧テイストの柔らかさを水まわりにも取り入れるため、ホワイトの小物で統一しています。とくに洗面台まわりは、セラミックのトレーやガラスのボトルを置くだけでぐっと洗練された印象に。
新規リノベーションで内装が新築同様に生まれ変わっているので、小物で優しく色味を足すだけで住まいとしての清潔感が高まります。毎日の身支度が少し楽しくなる、柔らかい雰囲気づくりを意識しました。
新規リノベーションで内装が新築同様に生まれ変わっているので、小物で優しく色味を足すだけで住まいとしての清潔感が高まります。毎日の身支度が少し楽しくなる、柔らかい雰囲気づくりを意識しました。
ノイン ソファベッド
3人掛け
いつでも返せるプラン
4,950
円/月〜
form サンドリナ リビングテーブル
幅75×奥行75×高さ38㎝
いつでも返せるプラン
あとから購入可能
1,980
円/月〜
form アーティーク ダイニングテーブル
幅150×奥行80×高さ72cm
いつでも返せるプラン
あとから購入可能
5,170
円/月〜
Fitin テレビボード 01
W96xD40xH42.5cm
いつでも返せるプラン
あとから購入可能
2,500
円/月〜
カラメリ チェア
1脚
いつでも返せるプラン
30
%OFF
あとから購入可能
924
円/月〜
通常価格
1,320
円
ウンベラータ スパイラル150cm(フェイクグリーン)
W60×H150xφ20cm
いつでも返せるプラン
あとから購入可能
1,400
円/月〜
さえき是政食品館:隣接
ウェルシア薬局府中是政店:10m(徒歩1分)
府中第八小学校:650m(徒歩9分)
府中第九中学校:1,400m(徒歩18分)
| 物件名 | リムザ |
| 所在地 | 東京都府中市是政4-1-1 |
| 交通 | 西武多摩川線「是政」歩4分 |
| 種別物件 | マンション |
| 総戸数 | 553戸 |
| 構造 | 鉄筋コンクリート造陸屋根13階建 |
| 法令 | 準工業地域 |
| 建築年月 | 2005年2月 |
| リノベーション年月 | 2025年9月30日 |
| 引渡 | 即時 |
| 間取り | 3LDK |
| 専有面積 | 80.21m² |
| ルーフバルコニー面積 | 13.00m² |
| アルコープ面積 | 4.22m² |
| 販売価格 | 5,180万円(税込) |
| 管理費(月額) | 12,900円 |
| 修繕積立金(月額) | 14,280円 |
| その他費用 | インターネット使用料980円/月 自治会クラブリムザ会費300円/月 |
| 分譲後の権利形態 | 敷地:所有権 |