グレーを効かせた、洗練ナチュラルな暮らし
2025/12/19
コスモ保土ケ谷パークフォルム 203号室
神奈川県横浜市・保土ヶ谷駅バス13分/井土ヶ谷駅バス7分
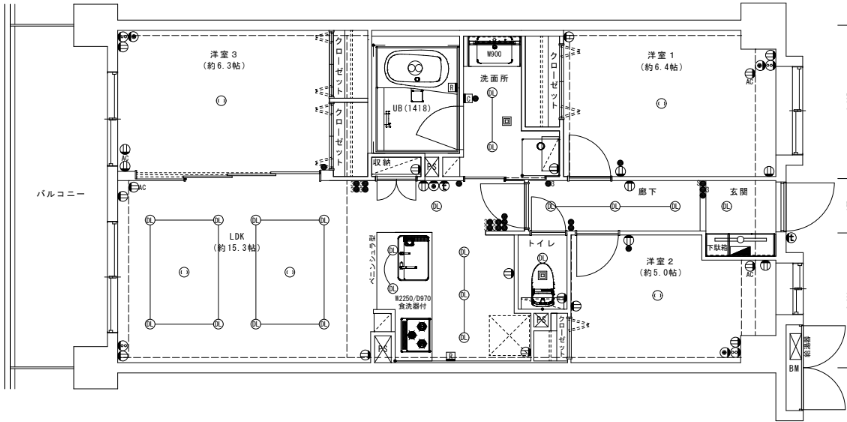
70.20㎡・3LDK

インテリアコーディネーターのNです。
今回ご紹介する物件は、3LDK・70㎡超で3,000万円台という現実的な条件だからこそ、インテリアは背伸びしすぎない上質感を大切にしました。
同じようなテイストの物件と比べたときに、この住まいは「かわいい」よりも「落ち着く」、「流行」よりも「ちょうどいい」そんな印象が残るよう意識しました。
今回ご紹介する物件は、3LDK・70㎡超で3,000万円台という現実的な条件だからこそ、インテリアは背伸びしすぎない上質感を大切にしました。
同じようなテイストの物件と比べたときに、この住まいは「かわいい」よりも「落ち着く」、「流行」よりも「ちょうどいい」そんな印象が残るよう意識しました。

Gray Natural
Interior
グレーナチュラル インテリア
やさしい北欧ナチュラルに、グレーで引き締めた“等身大の心地よさ”ホワイトオーク調の新しいフローリングを主役に、ナチュラルで明るい北欧テイストをベースにしながら、水回りとリンクするダークグレーをさりげなく取り入れました。
駅距離は少しありますが、その分落ち着いた住環境。価格とのバランスを考えると、「無理をしないけれど、ちゃんと今っぽい」暮らしが似合う住まいです。
駅距離は少しありますが、その分落ち着いた住環境。価格とのバランスを考えると、「無理をしないけれど、ちゃんと今っぽい」暮らしが似合う住まいです。
LDK15.3帖の広さを最大限に活かすため、ソファとローテーブルはあえて低めのデザインを選びました。視線が自然と奥まで抜け、実際の帖数以上にゆったりと感じられます。ファブリックは光沢感のあるナチュラルカラーで統一し、やさしい雰囲気を大切にしています。保土ヶ谷エリアらしい落ち着いた空気感とも相性がよく、バスアクセスの立地だからこそ「家で過ごす時間が心地いい」ことを重視しました。
ダイニングには、幅150cmの木目テーブルをセレクト。4脚のチェアを置いても窮屈にならず、家族の食事や来客時にも対応できます。椅子は背中をやさしく支えるデザインを選び、長く座っても疲れにくい仕様に。
井土ヶ谷・保土ヶ谷方面からのアクセスで、週末は家でゆっくり過ごす方を想定し、「外食より家ごはんが楽しくなる」空間づくりを意識しました。
井土ヶ谷・保土ヶ谷方面からのアクセスで、週末は家でゆっくり過ごす方を想定し、「外食より家ごはんが楽しくなる」空間づくりを意識しました。
水回りは主張しすぎず、ダイニング・リビングと一体感を持たせるグレーで統一しました。新規リノベーションで設備が新しいため、余計な装飾はせず、清潔感と使いやすさを前面に出しました。
色を足したい場合は、グリーンや陶器小物など、自然素材がおすすめです。
色を足したい場合は、グリーンや陶器小物など、自然素材がおすすめです。
form サンドリナ リビングテーブル
幅75×奥行75×高さ38㎝
いつでも返せるプラン
あとから購入可能
1,980
円/月〜
ウンベラータ180cm(フェイクグリーン)
W110×H180xφ20cm
配送0円プラン
あとから購入可能
3,099
円/月〜
Fitin テレビボード 01
W96xD40xH42.5cm
いつでも返せるプラン
あとから購入可能
2,500
円/月〜
NOWHERE LIKE HOME アーニー ダイニングテーブル
幅150×奥行80×高さ70㎝
配送0円プラン
あとから購入可能
4,510
円/月〜
CLASSE ペンタ ダイニングチェア
W45×D47×H82.5cm
いつでも返せるプラン
あとから購入可能
1,320
円/月〜
ローソン保土ケ谷狩場町店:60m(徒歩1分)
クリエイトS・D横浜永田台店:800m(徒歩10分)
MEGAドン・キホーテ 狩場インター店:1,100m(徒歩14分)
| 物件名 | コスモ保土ケ谷パークフォルム |
| 所在地 | 神奈川県横浜市保土ヶ谷区狩場町422-10 |
| 交通 | JR横須賀線「保土ヶ谷」駅バス13分・京急本線「井土ヶ谷」駅バス7分 横浜市営バス「東仲ふれあい公園」徒歩2分・横浜市営バス「永田町住宅前」徒歩9分 |
| 種別物件 | マンション |
| 総戸数 | 70戸 |
| 構造 | 鉄筋コンクリート造陸屋根5階建 |
| 法令 | 第一種住居地域/第一種中高層住居専用地域 |
| 建築年月 | 1998年9月 |
| リノベーション年月 | 2025年11月初旬 |
| 引渡 | 相談 |
| 間取り | 3LDK |
| 専有面積 | 70.20m² |
| ルーフバルコニー面積 | 10.80m² |
| 販売価格 | 2,999万円(税込) |
| 管理費(月額) | 5,700円 |
| 修繕積立金(月額) | 21,200円 |
| その他費用 | 自治会会費200円/月 |
| 分譲後の権利形態 | 敷地:所有権 |