静けさを重ねる、大人のタウンハウス
2026/04/06
東京都大田区
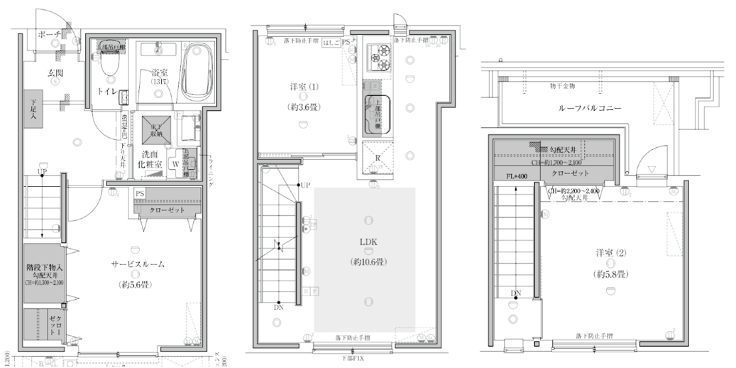
69.30㎡・2LDK
SOLD OUT

インテリアコーディネーターのNです。
今回は価格と立地のバランスが取れた、現実的にちょうどいい上質さを何より大切にしました。
・派手すぎない
・でも安っぽく見えない
・暮らしが具体的に想像できる
この3点を軸に、ベージュ調で統一しながら、余白を残したコーディネートにしています。
タウンハウスならではのプライバシー性と、大森・山王エリアの落ち着いた空気感を、感じ取ってご覧ください。
今回は価格と立地のバランスが取れた、現実的にちょうどいい上質さを何より大切にしました。
・派手すぎない
・でも安っぽく見えない
・暮らしが具体的に想像できる
この3点を軸に、ベージュ調で統一しながら、余白を残したコーディネートにしています。
タウンハウスならではのプライバシー性と、大森・山王エリアの落ち着いた空気感を、感じ取ってご覧ください。

Urban Neutral
Interior
アーバンニュートラル インテリア
大田区・山王エリアという落ち着いた高級住宅街に佇むタウンハウスの特性を活かし、「都会的でありながら、肩肘張らずに暮らせる上質感」を軸にコーディネートしました。専有69.30㎡・2LDKという現実的なサイズ感の中で、2階LDKと3階洋室を中心に、DINKSにもファミリーにもフィットする余白のある空間を意識しています。
リビングは、あえて低めの2Pソファと1Pソファを組み合わせ、視線が自然と横に広がるレイアウトにしています。タウンハウスならではの立体的な構造の中でも、圧迫感を感じさせず、家族構成が変わっても使いやすい配置です。
ブラウン調の家具でまとめつつ、ラグやクッションで柔らかさをプラス。大森エリアの落ち着いた街並みと相性の良い、都会的だけれど気取らないリビングを目指しました。
ブラウン調の家具でまとめつつ、ラグやクッションで柔らかさをプラス。大森エリアの落ち着いた街並みと相性の良い、都会的だけれど気取らないリビングを目指しました。
キッチンまわりは、家具や照明を最小限に抑え、生活動線がきれいに見えることを重視しました。タウンハウスは上下階の移動がある分、2階のLDKは軽やかさが重要になります。
来客時にはダイニングを接客スペースとしても使えるため、料理をしながら会話が途切れない距離感を意識しています。
来客時にはダイニングを接客スペースとしても使えるため、料理をしながら会話が途切れない距離感を意識しています。
3階の洋室は、ベッドを主役にしたシンプルな構成。余計な家具を置かず、サイドテーブルと間接照明で、ホテルライクな落ち着きを演出しつつ、カバーでちょっとした遊び心を。
ブラウン系のフレームとやわらかな照明の組み合わせは、仕事で忙しいDINKSにも、子育て世帯にもちゃんと休める寝室をつくってくれます。
ブラウン系のフレームとやわらかな照明の組み合わせは、仕事で忙しいDINKSにも、子育て世帯にもちゃんと休める寝室をつくってくれます。
水まわりは装飾を控えめにし、清潔感を第一に。フェイクグリーンや小物でほんの少しだけ表情を加え、ただの設備にならないようバランスを取っています。忙しい朝も、夜のリセット時間も、気持ちが整う空間です。
CIRCLE ソファ ビーガンレザー ナチュラル
2人掛け
いつでも返せるプラン
5,280
円/月〜
CIRCLE ソファ ビーガンレザー ナチュラル
1人掛け
いつでも返せるプラン
3,080
円/月〜
CIRCLE ソファ ビーガンレザー ナチュラル
オットマンL
いつでも返せるプラン
1,540
円/月〜
MA SALGUEIRO / Broadway ラグ
140×200cm
いつでも返せるプラン
あとから購入可能
1,540
円/月〜
CIRCLE サイドテーブル
W40×D50×H55cm
いつでも返せるプラン
あとから購入可能
1,200
円/月〜
ウンベラータ120cm(フェイクグリーン)
W55×H120xφ17.5cm
配送0円プラン
あとから購入可能
1,900
円/月〜
Apel 宮付き 収納ベッドフレーム OHKA
ダブル
いつでも返せるプラン
あとから購入可能
3,630
円/月〜
Fitin テレビボード 01
W96xD40xH42.5cm
いつでも返せるプラン
あとから購入可能
2,500
円/月〜
Fitin センターテーブル 01
W96xD40xH42.5cm
いつでも返せるプラン
あとから購入可能
1,600
円/月〜
モノトーン チェア
1脚
いつでも返せるプラン
あとから購入可能
935
円/月〜
モノトーン ダイニングテーブル
幅140×奥行80×高さ71cm
いつでも返せるプラン
あとから購入可能
2,090
円/月〜
アクア テーブルランプ
テーブルランプ
配送0円プラン
あとから購入可能
1,700
円/月〜
エバーグリーンポット150cm(フェイクグリーン)
W100×H150xφ20cm
配送0円プラン
あとから購入可能
2,300
円/月〜
オオゼキ 大森駅前店:680m(徒歩9分)
イトーヨーカドー 大森店:1,300m(徒歩17分)
大田区立蘇峰公園:290m(徒歩4分)
大田区立山王公園:830m(徒歩11分)
| 物件名 | カーサソサエティ大森山王 ザ・ヒルズ |
| 所在地 | 東京都大田区山王一丁目33番6 |
| 交通 | JR京浜東北線「大森」駅まで徒歩8分 都営浅草線「馬込」駅まで徒歩17分 京急本線「大森海岸」駅まで徒歩19分 |
| 種別物件 | マンション |
| 総戸数 | 80戸 |
| 構造 | 鉄骨造(薄板軽量形鋼造)地上3階建て |
| 法令 | 第一種低層住居専用地域、準防火地域、第一種高度地区 |
| 建築年月 | 2025年9月 |
| 引渡 | 諸手続き後、即入居可 |
| 間取り | 2LDK+S |
| 専有面積 | 69.30m² |
| ルーフバルコニー面積 | 6.52m² |
| ポーチ面積 | 0.64m² |
| 専用庭面積 | 2.20m² |
| 販売予定価格 | お問い合わせください |
| 管理費(月額) | お問い合わせください |
| 修繕積立金(月額) | お問い合わせください |
| 管理準備金(引渡し時一括) | お問い合わせください |
| 修繕積立基金(引渡時一括払) | お問い合わせください |